カテゴリー:
長浜市-新規プロジェクト
昨年の3月から設計をしています『長浜-終の棲家』(新築) 現在、見積り依頼中です~
昨年、敷地を見に行ったときは吹雪いていました>_< 大阪とはまったく気温が違い極寒です!
寒かった~~

今回ご縁を頂いたお施主様ですが、このホームページを10年ほど前からずーっと見ていてくださり
家を建てる機会があれば傳寶さんに!と決めておられたそうです。
なんと♪こんなにも嬉しいことはありません♪♪
あまりに感動して設計に力が入り過ぎ、いつも以上に時間がかかってしまいました・・・反省・・・
今回、2人暮らしということもあって、延床30坪のコンパクトなお家です。
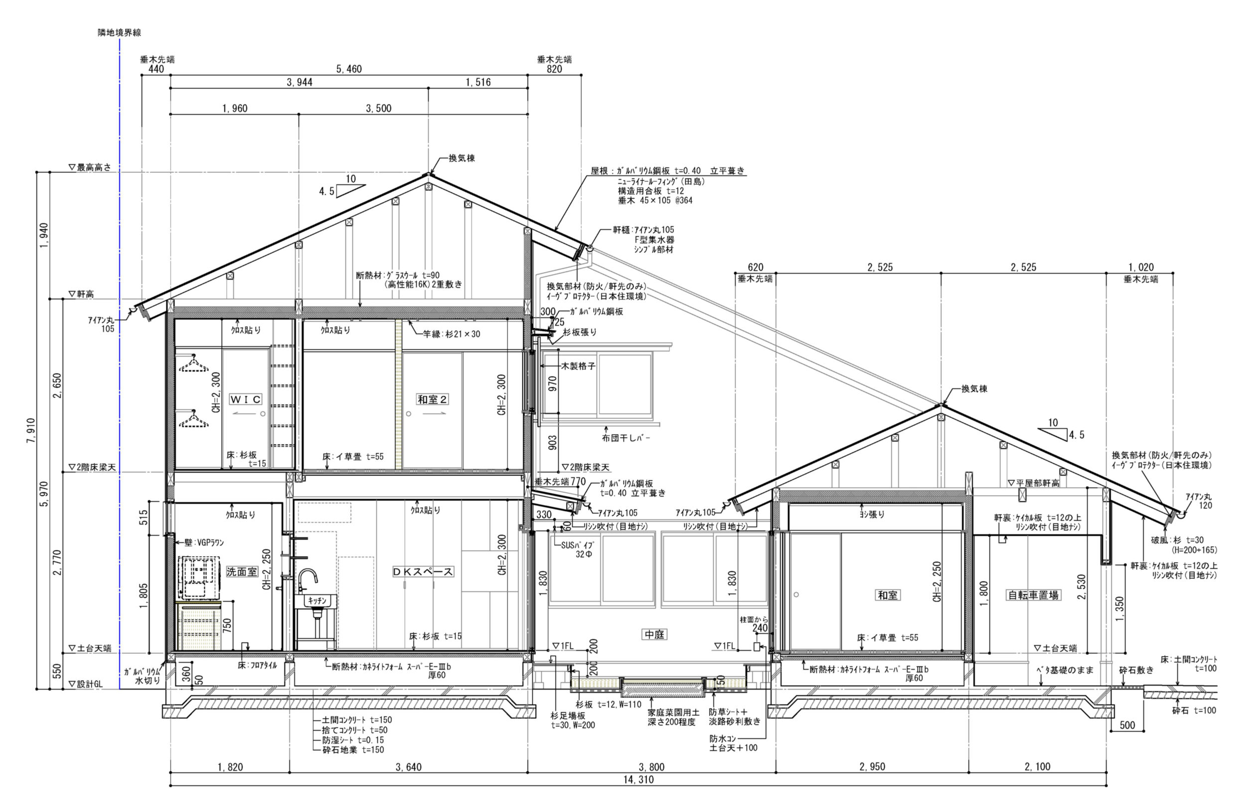
矩計図(かなばかりず)という、お家を縦半分に切ったような図面 ↓

平面プランだけですと窓の高さ、屋根形状、軒の出等の情報がわからないため、こういった図面を何枚も描いていきます。
今回は『中庭』を採用したプラン。中庭を造るのは初めてなので、出来上がりがとっても楽しみです。
そして、すべての部屋の東西南北を見た図『展開図』といわれる図面も描いていきます。

もちろんトイレの中やウォークインクローゼット等、主要でない部屋であっても、すべてこのような図面を描き、
デザインや納まりの検討を重ねていきます。
この展開図を描くことで、出来上がりの完成を頭の中で正確にイメージし、デザインで変な箇所はないか?使い勝手は
大丈夫か?など様々なことを整理しながら検討し、自問自答を繰り返していく、とっても大切な図面(時間)なのです。
設計をしていて3番目に楽しい時間が、この展開図を描いているときです。
建売住宅では、この図面は出てきませんよ~。
ちなみに1番目はやはり現場です!現場に行くのが大好きで、職人さんと納まりの話をしているときが一番テンションあがります。
2番目は納まり詳細図を描いているときです☆
長くなりそうなので、この話はまた別のコラムで・・・
話がそれましたが、最近、畳を敷く家がほとんどないと言われているのですが(畳屋さん談)、当事務所で造るお家ではいつも和室
を採用していただいており、今回のお家も和室が3つ。
障子や格子等、和テイストのデザインがたくさんあり、コンパクトながら中身の濃いデザインとなっています。
次回は、『なぜコンパクトなお家なのに、それほど設計に時間がかかるのか?』という内容についてお話ししたいと思います。
